设为主页
加入收藏
旧站入口
客户留言
网站首页
办公室装修
办公室设计
创意设计
厂房装修
装修百科
装修问答
案例展示
客户留言
联系我们
案例展示
首页
>>
案例展示
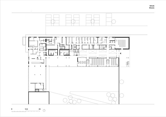
学校装修实景图
作者:匿名 访问量:4260 发布时间:2017-1-4
本学校装修平面布置共计16间教室和9个教师特定的房间,以及为600名学生提供一个娱乐区的供空间。建筑本身是用混凝土和木材建造的,主楼的正面覆盖着名的当地石头,两个较高的楼层用木材亭子装饰。
上一篇:
设计公司办公室实景图
下一篇:
独特风格的装修设计
办公室装修
※
办公室如何装修
※
办公室需要装新风吗
※
办公室装修风格有几种
※
办公室PVC地胶环保吗
※
100平米简约办公室装修多少费用
※
铺地板要做自流坪吗
※
会议室不隔音怎么解决
※
超白玻璃和普通玻璃的区别
办公室设计
※
办公室装修平面设计思路
※
办公室流行的设计风格
※
会议室设计思路
※
LOGO字的安装高度
※
会议室设计思路
※
办公室的空间感觉变大
※
办公室装修心得
※
办公室软装搭配有哪些要求?
联系我们
网站首页
|
装修百科
|
装修问答
|
办公家具
|
弱电机房
|
门禁监控
|
消防报批
|
建材知识
|
装修讲堂
|
客户留言
|
联系我们
YZ ZINGFULL 2013 版权所有
沪ICP备17024232号
微信扫一扫
x
装修QQ咨询
T:4006661357